502519548
mal-bud766@wp.pl
Skład budowlany
: Antoniewska 11/B 62-085, 62-085 Skoki,
tel. +48 61 812 42 84
Strona główna
O nas
Inwestycje
Antoniewska 22c
Skład budowlany
Kontakt
×
Strona główna
O nas
Inwestycje
Antoniewska 22c
Skład budowlany
Kontakt
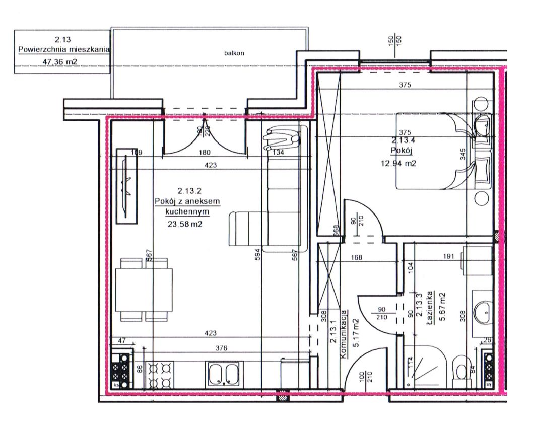
Inwestycja - Antoniewska 22c - Piętro II - Mieszkanie 2.13
Strona główna
Inwestycje
Antoniewska 22c
Piętro II
Mieszkanie 2.13
Mieszkanie 2.13
Wolne
Nr mieszkania:
2.13
Piętro:
2
Powierzchnia:
47,36 m
2
Liczba pokoi:
2
Balkon:
Tak
Ogródek:
Nie
Pom. przynależne:
komórka lokatorska
Cena za m
2
:
6 400 zł
Cena brutto:
303 104 zł
Pokaż historię ceny
Historia ceny
(Antoniewska 22c - Mieszkanie 2.13)
×
Cena za m²
Cena brutto
Zmiana ceny
6 400 zł
303 104 zł
14-09-2025