502519548
mal-bud766@wp.pl
Skład budowlany
: Antoniewska 11/B 62-085, 62-085 Skoki,
tel. +48 61 812 42 84
Strona główna
O nas
Inwestycje
Antoniewska 22c
Skład budowlany
Kontakt
×
Strona główna
O nas
Inwestycje
Antoniewska 22c
Skład budowlany
Kontakt
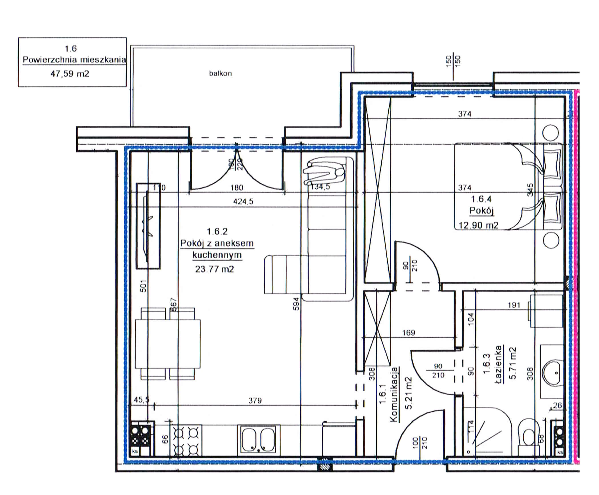
Inwestycja - Antoniewska 22c - Piętro I - Mieszkanie 1.6
Strona główna
Inwestycje
Antoniewska 22c
Piętro I
Mieszkanie 1.6
Mieszkanie 1.6
Wolne
Nr mieszkania:
1.6
Piętro:
1
Powierzchnia:
47,59 m
2
Liczba pokoi:
2
Balkon:
Tak
Ogródek:
Nie
Pom. przynależne:
komórka lokatorska
Cena za m
2
:
6 400 zł
Cena brutto:
304 576 zł
Pokaż historię ceny
Historia ceny
(Antoniewska 22c - Mieszkanie 1.6)
×
Cena za m²
Cena brutto
Zmiana ceny
6 400 zł
304 576 zł
14-09-2025